Pabellón Industrial en Iurreta (Bizkaia)
en Alquiler o Venta
Los 2 modulos de Pabellón Industrial en alquiler o venta se encuentran situados en un parque industrial muy bien comunicado en Iurreta, en eje de carreteras y en el centro de Euskadi:
Polígono Industrial Mallabiena, Parcelas 1.1 y 1.3 SAPU-T (junto a CASH Iurreta)
48215 Iurreta (Bizkaia)
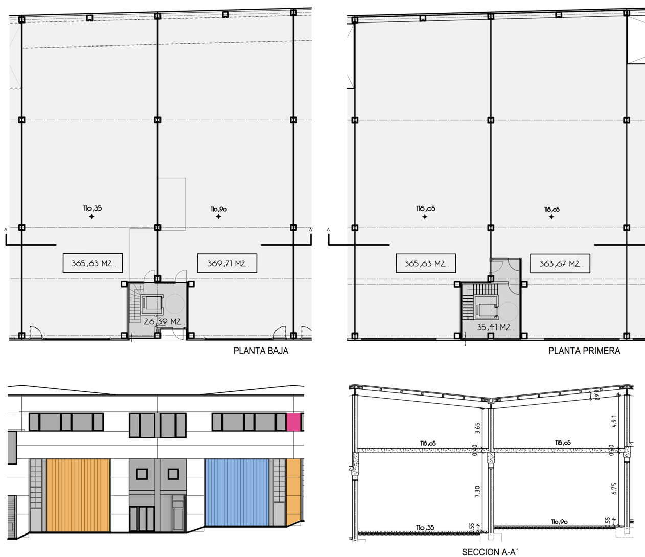
La
superficie total
de los mismos es de
366 y 370 m2 de planta, + 365 y 363 m2 de entreplanta con posibilidad de alquilar o comprar.
La construcción se ha realizado con unos estándares muy altos de calidad.
El edificio se encuentra en perfecto estado y uno de ellos tiene Txoko y oficinas.
Localización:
Polígono Industrial Mallabiena Parcelas 1.1 y 1.3 SAPU-T (junto a CASH Iurreta)
48215 Iurreta (Bizkaia)
Referencia: PI0003
m2:
1.1: 366 m2 planta + 365 m2 entreplanta
1.3: 370 m2 planta + 363 m2 entreplanta (con oficinas + Baños + Txoko)
Precio:
1.1: Alquiler 2.200 €/mes (+IVA)
1.1: Venta 425.000 € (+IVA)
1.3: Alquiler 2.500 €/mes (+IVA)
1.3: Venta 450.000 € (+IVA)

































